Master Plans & Renderings
The value and ROI of Master Planning and Illustrative Designs
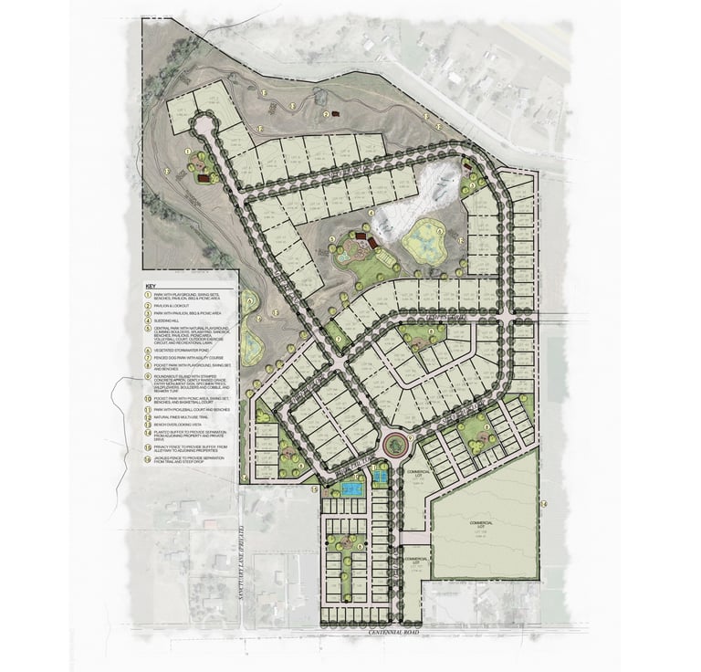
Illustrative master plans, site plans, and bird's eye perspectives are invaluable tools for effective marketing campaigns, particularly in fundraising and selling development lots and properties. These hand drawn visual representations offer an engaging, detailed preview of proposed projects, bridging the gap between conceptual ideas and tangible realization. Unlike photo realistic models, hand drawn illustrations carry an inherent flexibility; they are perceived as conceptual rather than finalized, allowing room for interpretation and evolution as the design progresses. This flexible quality fosters open mindedness, encouraging stakeholders to view the project as adaptable and responsive to input and changes.
Our illustrative master plans are crafted to capture the overall vision of a development, integrating elements like buildings, landscapes, amenities, and circulation networks. This comprehensive view is essential for communicating how the project will enhance the community or environment it inhabits, while simultaneously inviting dialogue about adjustments and improvements. In this way, illustrative designs serve not only as a visual representation but as an ongoing conversation about the project’s potential.
Similarly, our site plans provide a detailed layout of spatial arrangements, offering insights into functionality and accessibility. Because hand drawn illustrations are less rigid in appearance, they encourage stakeholders to contribute their ideas and perspectives, creating a more collaborative process that enhances the overall design.
Bird's eye perspectives add yet another layer of engagement, showing the project from an aerial viewpoint that reveals its scale and harmony with the surrounding context. By capturing the project’s integration with its environment in a way that is open to refinement, these perspectives build a strong foundation for stakeholder investment and buy in.
Together, these illustrative tools are essential in marketing campaigns, translating complex architectural and landscape concepts into accessible and inviting visuals. They not only aid in securing funding and interest but also in selling a flexible vision that future residents and users can help shape. By employing hand drawn illustrations at the concept level, developers and architects can enhance their marketing efforts, showcasing projects as thoughtfully designed yet open to evolution, ultimately standing out in a competitive market and achieving their desired outcomes.
















